Продається квартира Тернопіль, Тернопільська  (№ 213-290-829)

Ціна: 84 000 $

Продається квартира Тернопіль, Тернопільська фото 1

Тернопіль, Тернопільська

Характеристики

Ціна: 84 000 $
№ об'єкта: 213-290-829
Кімнат: 1
Поверх: 5 / 5
Площа: 120 / - / 12 м2
Тип квартири: новобудова(сира)
Тип стін: цегла
Опалення: індивідуальне газове

Опис

Продаж 3-кімнатної дворівневої квартири в центрі міста – 125 м²

Пропонується простора дворівнева 3-кімнатна квартира загальною площею 125 м² у цегляному будинку комфорт-класу. Квартира розташована в центральній частині міста у закритому дворі зі шлагбаумом.

🔹 Стан квартири: після будівельників, що дає можливість зробити ремонт на власний смак.
🔹 Перший рівень якісно відштукатурений, частково нанесена стартова шпаклівка.
🔹 Встановлені масивні металеві вхідні двері з МДФ-накладкою (3D дизайн), нержавіючим порогом та протизламними накладками.

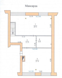
Планування:
•3 окремі кімнати
•2 санвузли (2,5 м² та 7 м²), один уже укомплектований (унітаз, умивальник, дзеркало)
•Високий другий рівень – 2,7 м
•Великий балкон – 6 м²
•Поруч комора 5 м² (не входить у загальну площу)

Комунікації та технічні переваги:
•Індивідуальне газове опалення (передбачено під турбований або димохідний котел)
•Встановлено лічильники на воду з дистанційною передачею даних та електролічильник
•Проведені канали під інтернет та кабельне телебачення
•Дах утеплений мінеральною ватою Rockwool (20 см) з гідро- та паробар’єром
•Є можливість встановлення сонячних панелей

Будинок:
•цегляний, утеплений пінопластом 10 см
•закрита територія двору

📍 Інфраструктура: у пішій доступності центр міста, школи, дитячі садки, супермаркети, ТРЦ, парк, ресторани, зупинки транспорту, банки, аптеки.

Квартира має дуже хороше планування та великий потенціал для створення сучасного дворівневого житла в центрі міста.

📞 Телефонуйте для огляду!

Об'єкт на карті