Головна >> Купити квартиру в Тернополі, Львові, Луцьку, Івано-Франківську, Ужгороді, Чернівцях >> Об'єкт №213265546
Продається простора 1.5 кімнатна квартира. (№ 213-265-546)

Ціна: 57 000 $
Характеристики
| Ціна: | 57 000 $ |
|---|---|
| № об'єкта: | 213-265-546 |
| Кімнат: | 1 розд, студія |
| Поверх: | 2 / 3 |
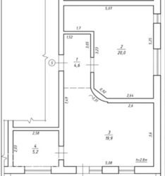
| Площа: | 53 / 20 / 25 м2 |
| Санвузол: | 1 сумісний |
| Балкон: | балкон |
| Тип квартири: | новобудова(сира) |
| Тип стін: | цегла |
| Рік будівництва: | 2021 |
| Опалення: | індивідуальне електричне |
| Додатково: | новобудова |
Адреса: Закарпатська, Ужгород, Мотря Братійчук
Продається 1.5 кімнатна квартира в триповерховому клубному будиночку.
Квартира тепла, будинок цегляний.
Гарний спокійний район.
Будинок зданий в експлуатацію та готовий до нових власників. Інфраструктура (до 500 метрів): Школа, Лікарня, поліклініка, Ринок, Супермаркет, ТРЦ, Аптека, Дитячий садок;






















