Головна >> Купити квартиру в Тернополі, Львові, Луцьку, Івано-Франківську, Ужгороді, Чернівцях >> Ріелтор Рієлтор >> Об'єкт №213238011
Продається 1 кімнатна квартира в районі Шахти. (№ 213-238-011)

Ціна: 36 000 $
Характеристики
| Ціна: | 36 000 $ |
|---|---|
| № об'єкта: | 213-238-011 |
| Кімнат: | 1 розд |
| Поверх: | 5 / 5 |
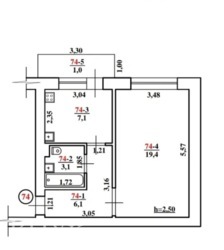
| Площа: | 36.70 / 19.4 / 7.1 м2 |
| Санвузол: | 1 сумісний |
| Балкон: | балкон |
| Тип квартири: | вторинний ринок |
| Тип стін: | цегла |
| Опалення: | індивідуальне газове |
Адреса: Закарпатська, Ужгород, Руданського, 5
Продається 1 кімнатна квартира 36.7 м2 район Шахти.
Будинок цегляний теплий.
Гарне планування.
Індивідуальне газове опалення.
Потребує ремонту.
Підходить під ЄВідновлення














