Продаю квартиру в будинку в Рованцях (№ 213-170-728)

Ціна: 35 000 $
Характеристики
| Ціна: | 35 000 $ |
|---|---|
| № об'єкта: | 213-170-728 |
| Кімнат: | 3 розд |
| Поверх: | 3 / 3 |
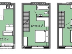
| Площа: | 60 / - / - м2 |
| Санвузол: | 1 |
| Балкон: | відсутній |
| Тип квартири: | новобудова(сира) |
| Тип стін: | цегла |
| Рік будівництва: | 2023 |
| Опалення: | індивідуальне електричне |
| Додатково: | новобудова |
Адреса: Волинська, Луцький, Рованці, Зоряна
Шукаєте ідеальне житло у тихому та комфортному районі?
Пропонуємо до продажу останню квартиру у будинку, будівництво якого знаходиться на завершальній стадії!
Чому варто обрати саме цю пропозицію?
Готовність будинку: Вам не доведеться чекати роками! Будинок майже готовий до здачі в експлуатацію.
Паркомісце: У вартість кожної квартири вже включено паркомісце, що гарантує комфорт та безпеку для вашого автомобіля.
Зручне планування: Двокімнатна квартира площею 60 м² – ідеальний варіант для сім'ї або інвестиції.
Додаткові бонуси:
Ми надамо контакти перевірених майстрів, які допоможуть вам з ремонтом.
Ви отримаєте ГАРАНТОВАНІ знижки на будівельні матеріали, меблі та техніку, що дозволить значно заощадити кошти на облаштуванні квартири вашої мрії.
Не втрачайте унікальний шанс!
Залишилося всього дві квартири! Не відкладайте своє щасливе майбутнє на потім.
Зателефонуйте прямо зараз, щоб дізнатися деталі та домовитися про перегляд!





















