Продам трикімнатну квартиру у цегляному будинку (№ 213-037-829)

Ціна: 65 000 $
Характеристики
| Ціна: | 65 000 $ |
|---|---|
| № об'єкта: | 213-037-829 |
| Кімнат: | 3 розд |
| Поверх: | 8 / 9 ліфт |
| Площа: | 72 / 43 / 9 м2 |
| Санвузол: | 1 роздільний |
| Балкон: | балкон |
| Тип квартири: | новобудова(з ремонтом) |
| Тип стін: | цегла |
| Рік будівництва: | 2022 |
| Опалення: | індивідуальне газове |
Адреса: Тернопільська, Тернопіль, Аляска, Смакули вул.
Продається простора трикімнатна квартира в якісному цегляному будинку з частковим ремонтом!
Основні переваги квартири:
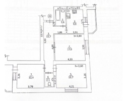
Загальна площа: зручне планування з трьома окремими кімнатами (12,4 м², 17 м² та 13,7 м²).
Кухня: простора (9 м²) з виходом на балкон, ідеальна для сімейних сніданків чи вечерь.
Санвузол: ванна кімната (3,6 м²) і туалет (2,1 м²) роздільні, для більшого комфорту.
Балкони: два окремих балкони, що додають ще більше затишку та простору.
Коридор: великий (12,7 м²), із можливістю облаштувати гардероб чи зону зберігання.
Встановлено індивідуальне опалення: батареї в кожній кімнаті, що дає змогу економити на комунальних послугах.
Стіни пофарбовані в білий колір – готові для ваших дизайнерських рішень.
Санвузол обладнаний сантехнікою – можна користуватися відразу.
Будинок утеплений, збудований із якісної цегли, міцний і довговічний.
Знаходиться в новому мікрорайоні з чудовою інфраструктурою: поруч магазини, аптеки, дитячі майданчики, школи та дитсадки.
Зручна транспортна розв’язка, доступ до всього необхідного для комфортного життя.
Телефонуйте, покажу квартиру у зручний для вас час!






















