Продам Будинок котедж (№ 22-438-101)
Ціна: 45 000 $

Характеристики
| Ціна: | 45 000 $ |
|---|---|
| № об'єкта: | 22-438-101 |
| Поверхів: | 1 |
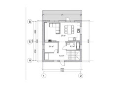
| Площа будинку: | 130 м2 |
| Ділянка: | 6 сот |
| Опалення: | індивідуальне електричне |
Адреса: Волинська, Луцк, ДПЗ, Городище
Продаж якісного цегляного будинку.
Продаж будинку в передмісті Луцька. До міста 3 км. С. Городище, Луцький р-н, Боратинська ОТГ. Новий масив, активно забудовується. Будинок на стадії будівництва. Тихе, затишне місце. Будинок цегляний, збудований в півтори цегли з якісних матеріалів, з дотриманням всіх норм, для розрахунку фундаменту проводилась геологія грунту. Опалення заплановане електричне 16 кВт. додатково може бути камін або твердопаливний котел. На сусідній вулиці проведений інтернет. Велика тераса та балкон. В ціну входить: - коробка будинку з вікнами та вітражами; - перекриття деревяне утеплене; - септик; - скважина на воду; - влаштування ЩТП та високовольтної лінії(в подальшому самостійне підключення 16кВт) Є додаткові питання звоніть!.
Відстань до найближчого міста: до 5 км.;
Кількість кімнат: 4;
Тип будинку: Котедж;
Рік побудови здачі: На етапі будівництва;
Тип стін: Цегляний;
Тип покрівлі: Металочерепиця;
Cанвузол: 2 і більше;













